 
	
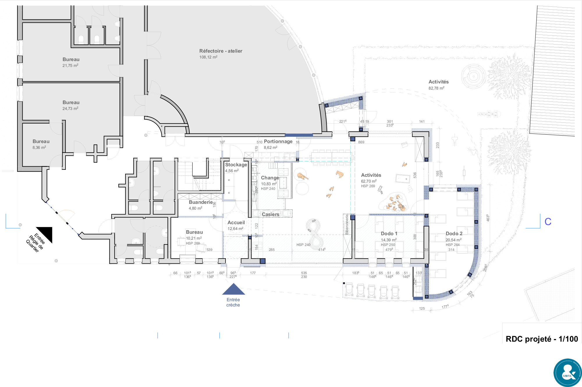
Le projet consiste en la transformation/extension d'un bâtiment existant en vue d'y aménager une crèche de 14 places. Actuellement une halte-garderie de 7 places est aménagée. Sa surface, celle d'un local annexe, et une extension permettront l'aménagement de la crèche. Les locaux du personnel prennent place à l'étage, dans un espace déjà partiellement aménagé pour cette fonction.
La crèche est aménagée sur l'emprise des actuels: la halte-garderie, magasin de seconde main et couloir. Ces derniers sont évidés de manière à réorganiser la crèche de la meilleure manière.
L'entrée se fait via une fenêtre de l'actuel local de soins, dont l'allège est démolie de manière à créer une porte adaptée à la fois aux personnels, aux parents, aux PMR et aux livraisons. Passé le sas d'entrée, les visiteurs trouveront le bureau sur la gauche. Celui-ci et idéalement situé pour à la fois le contrôle et la relation entre le personnel et les visiteurs. Les parents se dirigent vers la droite où un espace leur est réservé. Ils peuvent y changer leur enfant avant de la remettre aux puéricultrices. Les effets des enfants sont laissés dans un casier à double face également accessible directement depuis l'espace de change. Sous celui-ci, quelques maxi-cosy peuvent être laissés par les parents, alors que les poussettes sont laissées dehors, dans un local prévu à cet effet.
L'espace d'activité se développe en L. De cette manière, il profite des grandes baies existantes et peut offrir des espaces aux ambiances variées, adaptée aux besoins des enfants aux divers moments de la journée. Il se prolonge à l'extérieur où un espace minéral et un espace végétal sont aménagés.
Deux locaux dodo sont aménagés. L'un dans l'emprise du bâtiment existant, l'autre via une extension. Celle-ci est jouxtée au local poussettes et, via des auvents apportant à la fois une unité architecturale et les pare-soleils nécessaires à éviter les surchauffes, se développe sur les trois côtés du bâtiment. Celle-ci est imaginée en bardage zinc à joint debout bilaqué blanc.