Bâtiment commandé par l'Administration communale d'Evere pour abriter le service des Plantations.

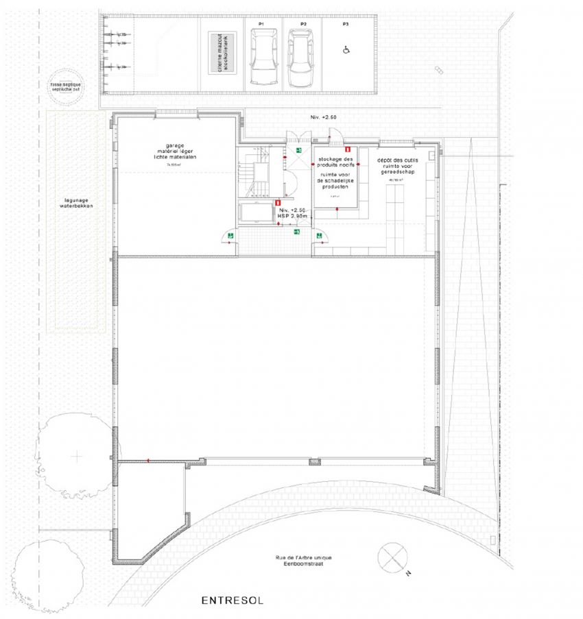
Le bâtiment se compose d'une partie garage et stockage pour le charroi et les outils, contenue dans le socle du bâtiment réalisé en béton et destiné a être recouvert de plantes grimpantes.

Le volume supérieur contient les bureaux, vestiaires, réfectoires et commodités pour l'équipe. Ce volume répond aux objectifs du standard passif.

Le bâtiment, Lauréat de l'appel à projet Bâtiment Exemplaire 2009 se distingue par un choix réfléchi des matériaux, une haute performance énergétique, un système solaire thermique pour la production d'eau chaude des douches.

Les eaux des douches sont épurées par un lagunage réalisé le long du bâtiment, et récupérées dans une citerne pour être réutilisées avec l'eau de pluie également récoltée.

  • Adresse Evere, Belgique
  • Maître de l'ouvrage Administration Communale d'Evere
  • Performance énergétique Bâtiment exemplaire
    Conception Bioclimatique
    Passif
  • Surface brute 1092 m²
  • État d'avancement Réceptionné
  • Date de réalisation 2015