Sur une parcelle de 12,50 mètres de long par 6,50 mètres de large, le projet consiste en la construction de 3 appartements en duplex.  La parcelle est devenue « dent creuse » à la suite de la démolition d'un immeuble insalubre en 2016. Le projet de construction respecte l'alignement des bâtiments contigus et s'implante en centre urbain dense.  Outre le fait qu'il s'élève d'un niveau pour culminer au même niveau (toitures) que le bâtiment contigu le plus haut, le bâtiment s'inscrit dans l'emprise du gabarit (en plan) du bâtiment démoli.  Le volume secondaire s'inscrit dans la même démarche, y compris pour sa hauteur.

Chaque duplex dispose d'un espace extérieur sous la forme de cour, de balcon ou de terrasse. L'éclairage naturel est orienté à l'est en façade à rue, et à l'ouest en façade arrière avec de large baies ouvertes sur le coucher du soleil. Ce projet de réhabilitation permet de donner une nouvelle jeunesse à une parcelle qui le mérite…  Après toutes ces années de reconversion/réhabilitation bricolée pour finir insalubre.

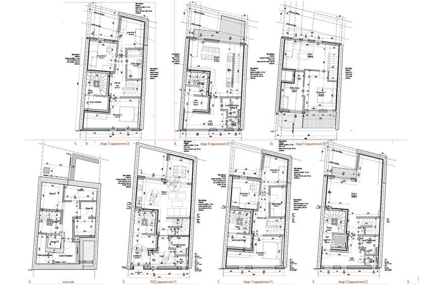
Les duplex sont répartis:

- RDC/étage 1, 3 chambres et cour extérieure, 82,80 m² de surface nette hors escalier.

-Étage 2/étage 3, 3 chambres et terrasse, 89,08 m² de surface nette hors escalier.

-Étage 4/étage 5, 1 chambre et terrasses, 73,16 m² de surface nette hors escalier.

  • Adresse Verviers, Belgique
  • Maître de l'ouvrage Privé
  • Performance énergétique Basse énergie
  • Surface brute 390
  • État d'avancement Réceptionné
  • Date de réalisation 2026