Le bâtiment qui fait l'objet de l'étude comprend 2700m² de surface brute, répartis en 4 niveaux, dont 700m² semi-enterrés, qui accueillent les cuisines et la buanderie/laverie, ainsi que les locaux techniques.
Les 2000m² restants représentent dès lors une surface généreuse et conforme au programme envisagé, à savoir, la conciergerie (préexistante), et une crèche composée de minimum 6 sections de 14 enfants (capacité actuelle de 72 enfants). Toutefois, une amélioration substantielle de la qualité et de la fonctionnalité des espaces et volumes est indispensable pour répondre aux besoins des enfants, garantir le bon fonctionnement de la crèche et rencontrer les normes en vigueur dans le secteur de la petite enfance.

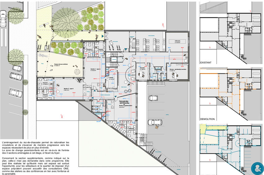
Afin d'améliorer la distribution des fonctions et d'offrir à chacune des sections un espace extérieur de qualité, nous faisons le choix de redistribuer les espaces intérieurs et extérieurs, en modifiant le volume chauffé, dans le respect de la volumétrie et du langage architectural du bâtiment existant, dont la Commission des Monuments et Sites n'a pas manqué de relever la qualité  :
- meilleure compacité du bâtiment = meilleure performance énergétique
- espace extérieur de qualité pour chaque niveau occupé par les enfants
- efficacité dans les coûts de rénovation car les surfaces concernées sont réduites : volume chauffé, compacité, enveloppe ; moins de surfaces à traiter tout en étant généreux pour les enfants et qualitatif pour l'équipe.

Notre offre a reçu le deuxième prix.

  • Adresse Molenbeek-Saint-Jean, Belgique
  • Maître de l'ouvrage Sibelga
  • Performance énergétique Très basse énergie
  • Surface brute 2700 m²
  • État d'avancement Concours